Toggle navigation
EN
云博首页
关于云博
公司简介
云博愿景
核心文化
发展战略
产品展示
涂装生产线
热洁炉
滤芯单级回收喷房系列
塑料板滤芯单级回收喷房系列
小旋风二级回收喷房系列
大旋风喷房系列
塑料板快速换色大旋风喷房
快速换色喷房系列
双层塑料快速换色喷房系列
机器人静电粉末喷涂
供粉中心
工程案例
案例展示
客户群
新闻资讯
视频区
服务支持
联系云博
EN
当前导航位置:
云博首页
>
产品展示
>
滤芯单级回收喷房系列
>
涂装生产线
热洁炉
滤芯单级回收喷房系列
塑料板滤芯单级回收喷房系列
小旋风二级回收喷房系列
大旋风喷房系列
塑料板快速换色大旋风喷房
快速换色喷房系列
双层塑料快速换色喷房系列
机器人静电粉末喷涂
供粉中心
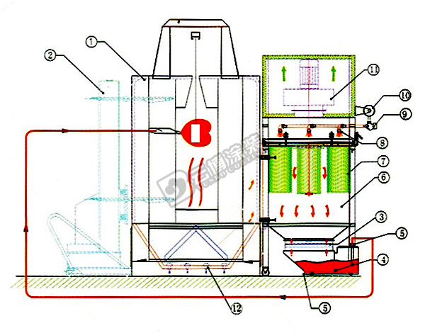
滤芯单级回收喷房系列
滤芯回收喷房原理图
可将筛粉及供粉系统集成在滤芯底部
独立背包滤芯回收喷房原理图
特点:
粉末可以97%循环利用,占地面积小,投资少;
应用场合:
适用不换色或粉末颜色不多于3-4种的喷涂场合
返回上一步
云博客服
0574-86197880
18958210398
385349319@qq.com